
LMF 38 LANDING CRAFT
The LMF 30′ landing craft is very similar to our 33′ landing craft that was launched in the spring of 2023. The 30′ was built for a client that just bought an island off the Maine coast and needed to transport equipment to the island. Equipped with an automatic drop-down bow door and designed to carry the load of a tractor, this boat is perfect for a multitude of jobs. Powered by twin Yamaha 250’s that provide of a cruise speed of 25 knots and 40+ knots wide open.

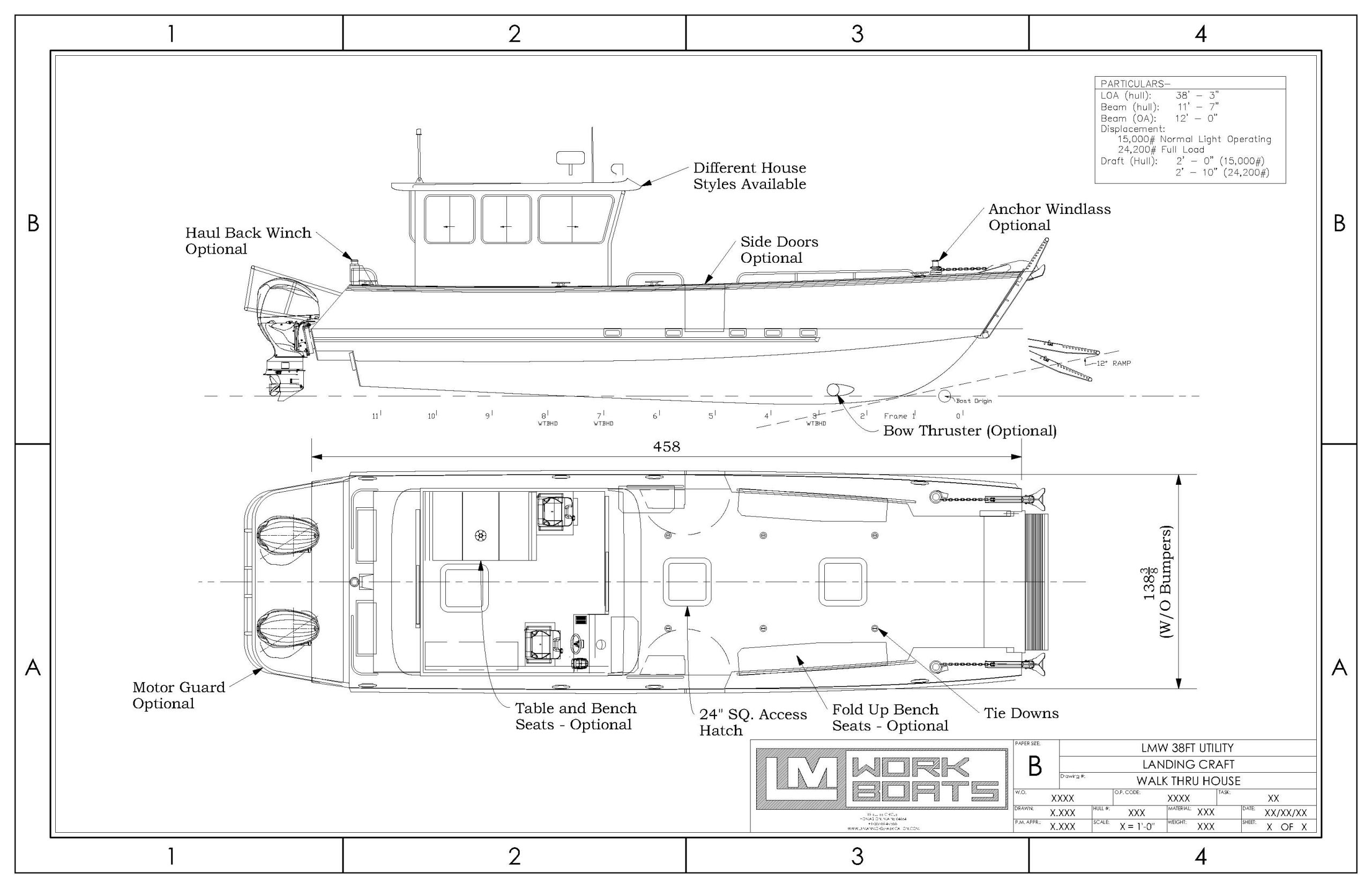
SPECIFICATIONS
| LOA | 38′ 3″ |
| BEAM | 11′ 7″ |
| DISPLACEMENT | 15000 |
| DESIGNED BY | Response Marine |
| BUILDER | Lyman-Morse Fabrication |
| MODEL | LANDING CRAFT |
| HULL MATERIAL | Aluminum (5086) |
| STANDARD HORSEPOWER | 2 x 350HP |
LMF 33 LC IN ACTION
Designed with commercial use in mind, the LMF 33 Landing Craft is the vessel that can do it all. Whether you are looking to haul nets for aquaculture research or simply beaching your boat on the rocky Maine beaches, the LMF 33 LC will deliver.






